Leave a Message

By providing your contact information to Rebecca Mitsui, your personal information will be processed in accordance with Rebecca Mitsui's Privacy Policy. By checking the box(es) below, you consent to receive communications regarding your real estate inquiries and related marketing and promotional updates in the manner selected by you. For SMS text messages, message frequency varies. Message and data rates may apply. You may opt out of receiving further communications from Rebecca Mitsui at any time. To opt out of receiving SMS text messages, reply STOP to unsubscribe.

Thank you for your message. We will be in touch with you shortly.

Explore Our Properties

Property Description

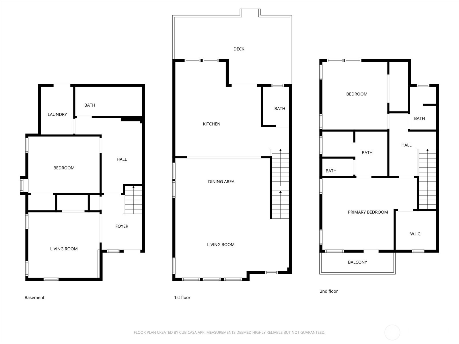
Crafted for effortless entertaining and everyday comfort, this Puget Ridge home opens into expansive, light-filled interiors with a seamless, open-concept design. The kitchen anchors the main level with designer finishes and a refined, modern aesthetic, flowing naturally into the living and dining spaces for easy gatherings. Just off the kitchen, a spacious deck invites indoor-outdoor living, perfectly positioned for hosting or unwinding against sweeping golf course and Puget Sound views. Thoughtfully designed with flexibility in mind, the home offers four well-appointed bedrooms, including a serene primary suite that feels tucked away and private. Elevated finishes and intentional details carry throughout, creating a cohesive and polished living experience. A detached one-car garage adds convenience, while the setting captures a quiet residential feel with striking natural outlooks.

Overview

Property Status
Pending
Lot Size
1 Sq.Ft.
MLS ID
2499511
Property Type
Condo
Year Built
2026

Features & Amenities

Total Area
2,097 Sq.Ft.
Neighborhood
Seattle
View Description
Golf Course, Sound, Territorial
Stories
3
Roof
Flat
Lot Features
Curbs, Paved, Sidewalk
Parking
Individual Garage
Heat Type
Ductless, Wall Furnace
Air Conditioning
Ductless
Appliances
Dishwasher, Disposal, Microwave, Refrigerator, Stove(s)/Range(s)
Other Interior Features
Primary Bathroom, Walk-In Closet(s)
Other Exterior Features
Cement Planked
Elementary School
Fairmount Park
Middle School
Madison Mid
High School
West Seattle High
School District
Seattle
Sales Price
$949,950
Real Estate Tax
$1/yr
HOA
$1/mo

Downloads

4584 22nd Avenue SW

Schedule a Tour

We would love to help you see this beautiful home! As a full-service brokerage, we can help you tour. Please submit an offer, and answer questions about the buying process.

Thank you

for your interest in 4584 22nd Avenue SW, Seattle, WA 98106

4584 22nd Avenue SW
Navigate
Seattle

Explore Seattle

read more

Mortgage Calculator

Estimate your monthly mortgage payment, including the principal and interest, property taxes, and HOA. Adjust the values to generate a more accurate rate.
$0,000 Your Payment 20 15 65
$0,000 Your Payment

I'm Interested In

4584 22nd Avenue SW

or Contact

Past Transactions

img
Provided by NWMLS, Realogics Sotheby's Int'l Rlty

$3,800,000

5 bd 4 ba 4,709 Sq.Ft. Sold
4232 Burke Avenue N, Seattle, WA 98103
MLS®: 2383160
img
Provided by NWMLS, Alchemy Real Estate

$2,155,000

4 bd 3 ba 3,066 Sq.Ft. Sold
1111 Nob Hill Avenue N, Seattle, WA 98109
MLS®: 2218616
img
Provided by NWMLS, Realogics Sotheby's Int'l Rlty

$1,434,950

2 bd 2 ba 2,721 Sq.Ft. Sold
4566 22nd Avenue SW, Seattle, WA 98106
MLS®: 2407253
img
Provided by NWMLS, Realogics Sotheby's Int'l Rlty

$1,499,975

4 bd 4 ba 2,900 Sq.Ft. Sold
4548 23rd Avenue SW, Seattle, WA 98106
MLS®: 2422528
img
Provided by NWMLS, Realogics Sotheby's Int'l Rlty

$1,470,000

4 bd 3 ba 1,969 Sq.Ft. Sold
2214 Broadway E Unit: A, Seattle, WA 98102
MLS®: 2445090
img
Provided by NWMLS, Realogics Sotheby's Int'l Rlty

$1,450,000

4 bd 4 ba 2,721 Sq.Ft. Sold
4570 23rd Avenue SW, Seattle, WA 98106
MLS®: 2431064
img
Provided by NWMLS, Alchemy Real Estate

$1,430,000

3 bd 4 ba 2,321 Sq.Ft. Sold
2833 NW 66th Street, Seattle, WA 98117
MLS®: 2275685
img
Provided by NWMLS, Realogics Sotheby's Int'l Rlty

$1,425,000

4 bd 4 ba 2,721 Sq.Ft. Sold
4576 22nd Avenue SW, Seattle, WA 98106
MLS®: 2387414
img
Provided by NWMLS, Alchemy Real Estate

$1,360,000

3 bd 4 ba 2,002 Sq.Ft. Sold
4337 30th Avenue W, Seattle, WA 98199
MLS®: 2316077
img
Provided by NWMLS, Alchemy Real Estate

$1,299,950

3 bd 4 ba 2,291 Sq.Ft. Sold
4333 30th Avenue W, Seattle, WA 98199
MLS®: 2322559
img
Provided by NWMLS, Alchemy Real Estate

$1,259,900

4 bd 2 ba 1,835 Sq.Ft. Sold
2212 10th Avenue E Unit: B, Seattle, WA 98102
MLS®: 2236801
img
Provided by NWMLS, Alchemy Real Estate

$1,298,600

4 bd 4 ba 2,084 Sq.Ft. Sold
2228 NE 125th Street, Seattle, WA 98125
MLS®: 2324528
Based on information submitted to the MLS GRID as of . All data is obtained from various sources and may not have been verified by the broker or MLS GRID. Supplied Open House Information is subject to change without notice. All information should be independently reviewed and verified for accuracy. Properties may or may not be listed by the office/agent presenting the information.

Follow Us On Instagram